Villa singola in vendita

Montebelluna, Via Ospedale - San Gaetano
€ 430.000
7 locali 7 locali
350 Mq 350 Mq
4 bagni 4 bagni

Villa singola in vendita

Montebelluna, Via Ospedale - San Gaetano

Descrizione annuncio

SANT'ANDREA. Proponiamo in vendita una splendida casa singola degli anni ’90, dalle generose dimensioni di circa 350 mq, immersa in un ampio e curato giardino privato di circa 460 mq, ideale per chi desidera privacy, spazio e comfort.

L’immobile è inserito in un contesto residenziale tranquillo e riservato, ma allo stesso tempo estremamente comodo a tutti i principali servizi: scuole, supermercati, negozi e mezzi pubblici sono facilmente raggiungibili, rendendo la soluzione perfetta anche per famiglie.

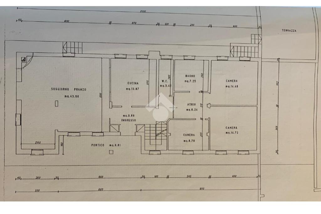
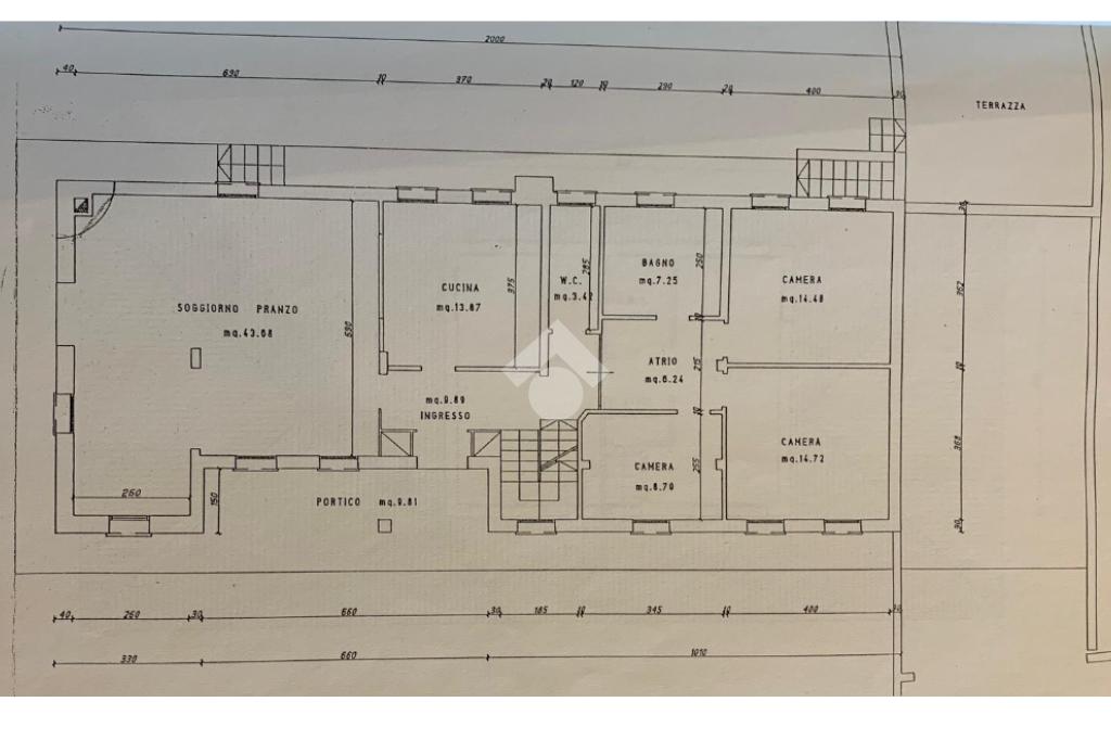
La proprietà si sviluppa su più livelli e offre una distribuzione degli spazi funzionale e versatile. Al piano terra troviamo tre camere da letto, di cui due matrimoniali e una singola, un bagno, un wc, una cucina con accesso diretto all’esterno e una vetrata che si affaccia sulla zona giorno, particolarmente luminosa grazie alle ampie superfici vetrate che guardano sul giardino di proprietà.

Salendo al primo piano, la zona soffitta ospita un wc e due ulteriori stanze che possono essere adibite a camere da letto, studio o spazi multifunzionali, adattandosi alle diverse esigenze abitative.

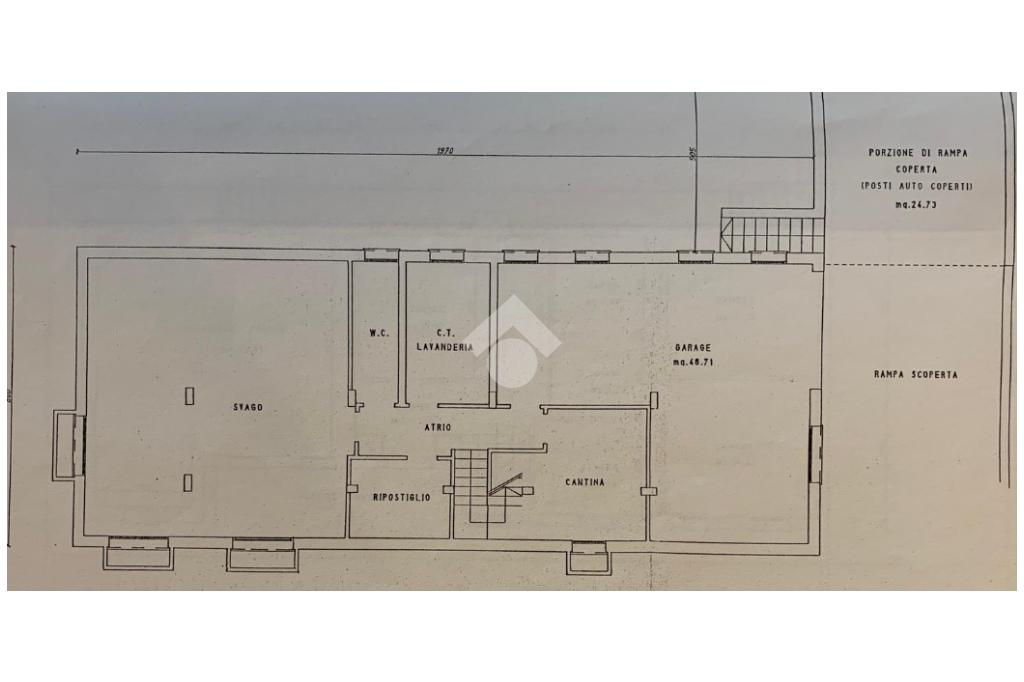
Il piano interrato è caratterizzato da un’ampia taverna con cucina, perfetta per momenti conviviali, un wc, una lavanderia, una cantina attualmente utilizzata come palestra e l’accesso diretto al garage doppio, comodo e pratico.

Questa soluzione rappresenta la scelta ideale per chi cerca una casa indipendente con ampie metrature interne ed esterne, in una posizione tranquilla ma ben servita. Contattaci per maggiori informazioni o per organizzare una visita.

Per ulteriori informazioni contattaci in Agenzia e seguici su Instagram ,e cliccando mi piace sulla pagina Facebook Gruppo Tecnocasa Montebelluna Duomo e Centro.

Scaricate gratuitamente l'app Tecnocasa sul vostro smartphone e sarete sempre aggiornati sulle nostre proposte di vendita.

Mostra tutto

Nelle vicinanze

Trasporto pubblico Trasporto pubblico
Montebelluna
Montebelluna
1,5 Km
Trasporto pubblico
140 m
Scuole Scuole
Asilo nido comunale
170 m
IPSIA Scarpa
350 m
Scuola Primaria Guglielmo Marconi
370 m
Scuola Secondaria di Secondo Grado Statale Papa Giovanni XXIII
530 m
Scuola dell'infanzia Bortot
740 m
Farmacia Farmacia
Naturalmente erbe erboristeria
100 m
Farmacia Bassi
390 m
Farmacia Centrale
760 m
Farmacia Contea alla Salute
850 m
Farmacia Centrale Dott. Andrea Marin
900 m
Ospedali Ospedali
Ospedale Civile di Montebelluna San Valentino
280 m
Ospedale Vecchio di Montebelluna
370 m
Supermercati Supermercati
Da Eddy, piaceri italiani - Crai
190 m
Natura Si
200 m
Cadoro
630 m
Supermercati Crai
1,1 Km
Dadi Market
1,1 Km
Negozi Negozi
Panificio pasticceria Quaggiotto
40 m
Ottavo peccato
140 m
Il riccio. Spaccio pannolini e prodotti per l'infanzia
360 m
Fiscalzo Abbigliamento e confezioni
390 m
Pane, Caffè, Pasticceria LD
480 m
Bar Bar
Bar
130 m
Mokita
180 m
La fiasca dei nonni
280 m
Hirsh
580 m
Caffè Bramezza
710 m
Ristoranti Ristoranti
PiBi. Il piacere della pizza e della birra artigianale
100 m
Elia Fast Food Kebab
170 m
Pizzeria la Terrazza
220 m
The Rock. Birreria steckhouse
470 m
Corte maggiore
570 m
Mostra tutto

Caratteristiche

Rif.:
61158217
Piano:
Su più livelli di 3
Totale piani:
3
Box:
1
Posti auto:
2
Terrazzi:
1
Mostra tutto
Prezzo Prezzo
€ 430.000
Rata mutuo Rata mutuo
€ 2.041 / mese
Spese annue Spese annue
€ 0
Proponi il tuo prezzoProponi il tuo prezzo

Classe Energetica

D
D
D
D
D
D
D
D
D
EP invernale del fabbricato:
EP estiva del fabbricato:
Anno di costruzione:
1986
Riscaldamento:
Autonomo
Tipo impianto:
A radiatori
Tipo alimentazione:
Gasolio

Ti interessa visionare l'immobile?

Fissa un appuntamento  Fissa un appuntamento

Richiedi informazioni

Clicca su Leggi per aprire l'informativa
* Questi campi sono obbligatori

Calcola il tuo mutuo

Semplice e senza impegno
Anticipo

( % )
Mutuo

( % )

pochi semplici passi

inserisci i tuoi dati
Questionario completato
Grazie per aver richiesto un appuntamento senza impegno con un nostro Consulente del Credito e Assicurativo.

Hai inserito correttamente tutti i dati necessari e a breve riceverai una e-mail con un link da convalidare per inviare i tuoi dati.
Affiliato
Studio Montebelluna Srl
Via Ospedale, 15 31044 Montebelluna (TV)

Il nostro staff


  • Edoardo Maria Cunzo
    Affiliato

  • Katia Bau
    Coordinatrice

  • Fahd Ibrahimi
    Collaboratore

  • Elisa Bottegal
    Coordinatrice

  • Marina Cunzo
    Affiliata

  • Linda Lampariello
    Collaboratrice

  • Matteo Tonini
    Collaboratore

  • Giulia Zanella
    Collaboratrice
Via Ospedale, 15 31044 Montebelluna (TV)
Zona: Montebelluna Duomo
Mostra su mappa
Orari: lunedì-venerdì 09:00/12:30 - 15:00/19:30 - sabato 09:00/12:30 e su appuntamento
Affiliato
Studio Montebelluna Srl
Via Ospedale, 15 31044 Montebelluna (TV)

2026 Tecnocasa Franchising S.p.A. - P. IVA 08365160152 - Via Monte Bianco 60/A 20089 Rozzano (MI). Ogni agenzia ha un proprio titolare ed è autonoma. Privacy policy | Policy utilizzo | Cookie policy