Porzione di bifamiliare in vendita

Montebelluna, Via Ospedale - Contea
€ 360.000
4 locali 4 locali
200 Mq 200 Mq
3 bagni 3 bagni

Porzione di bifamiliare in vendita

Montebelluna, Via Ospedale - Contea

Descrizione annuncio

BUSTA. Nel cuore della tranquilla località di Busta, a Montebelluna, proponiamo in vendita una porzione di bifamiliare di nuova realizzazione, la cui consegna è prevista per il 2027.

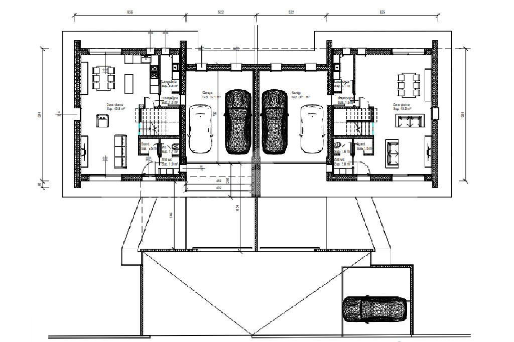
L'immobile, di circa 200 mq, si sviluppa su due livelli e offre ambienti ampi, luminosi e ottimamente distribuiti.

Al piano terra troviamo un'accogliente zona giorno open space con cucina a vista e soggiorno, perfetta per vivere momenti di convivialità in famiglia o con gli amici. Completano il piano un bagno di servizio e una comoda lavanderia.

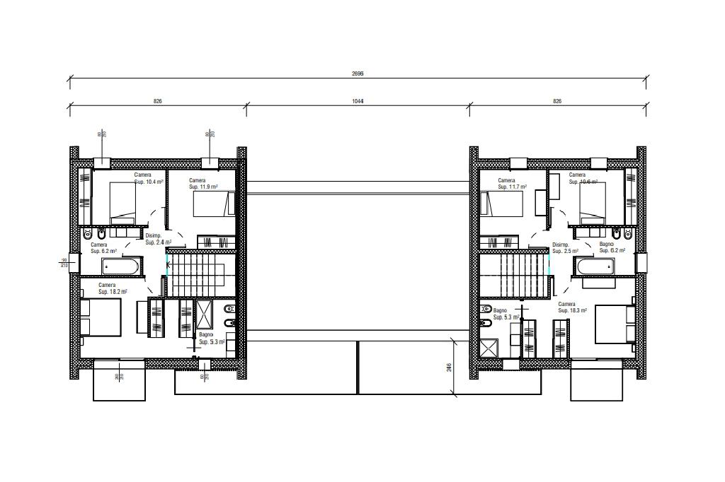
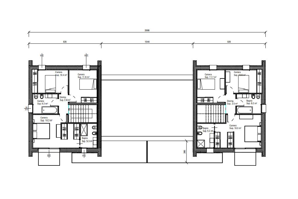
Salendo al primo piano, la zona notte è composta da tre camere da letto e due bagni, pensati per garantire comfort e privacy a tutta la famiglia.

All'esterno, la casa è circondata da un giardino privato, ideale per chi ama vivere all'aria aperta o desidera uno spazio verde da personalizzare.

Completa la proprietà un garage doppio con accesso diretto all'abitazione.

Situata in una zona residenziale riservata, ma comunque vicina ai principali servizi e ai collegamenti stradali, questa soluzione rappresenta un'opportunità imperdibile per chi cerca una casa moderna, efficiente e funzionale.

Per ulteriori informazioni contattateci in Agenzia e seguiteci anche su Instagram, e cliccando mi piace sulla pagina Facebook Gruppo Tecnocasa Montebelluna Duomo e Centro.

Scaricate gratuitamente l'app Tecnocasa sul vostro smartphone e sarete sempre aggiornati sulle nostre proposte di vendita.

Mostra tutto

Nelle vicinanze

Trasporto pubblico Trasporto pubblico
Montebelluna
Montebelluna
1,5 Km
Trasporto pubblico
140 m
Scuole Scuole
Asilo nido comunale
170 m
IPSIA Scarpa
350 m
Scuola Primaria Guglielmo Marconi
370 m
Scuola Secondaria di Secondo Grado Statale Papa Giovanni XXIII
530 m
Scuola dell'infanzia Bortot
740 m
Farmacia Farmacia
Naturalmente erbe erboristeria
100 m
Farmacia Bassi
390 m
Farmacia Centrale
760 m
Farmacia Contea alla Salute
850 m
Farmacia Centrale Dott. Andrea Marin
900 m
Ospedali Ospedali
Ospedale Civile di Montebelluna San Valentino
280 m
Ospedale Vecchio di Montebelluna
370 m
Supermercati Supermercati
Da Eddy, piaceri italiani - Crai
190 m
Natura Si
200 m
Cadoro
630 m
Supermercati Crai
1,1 Km
Dadi Market
1,1 Km
Negozi Negozi
Panificio pasticceria Quaggiotto
40 m
Ottavo peccato
140 m
Il riccio. Spaccio pannolini e prodotti per l'infanzia
360 m
Fiscalzo Abbigliamento e confezioni
390 m
Pane, Caffè, Pasticceria LD
480 m
Bar Bar
Bar
130 m
Mokita
180 m
La fiasca dei nonni
280 m
Hirsh
580 m
Caffè Bramezza
710 m
Ristoranti Ristoranti
PiBi. Il piacere della pizza e della birra artigianale
100 m
Elia Fast Food Kebab
170 m
Pizzeria la Terrazza
220 m
The Rock. Birreria steckhouse
470 m
Corte maggiore
570 m
Mostra tutto

Caratteristiche

Rif.:
61102800
Piano:
1 di 2 (Piano su più livelli)
Box:
1
Posti auto:
2
Camere da letto:
3
Arredamento:
Assente
Mostra tutto
Prezzo Prezzo
€ 360.000
Rata mutuo Rata mutuo
€ 1.699 / mese
Spese annue Spese annue
€ 0
Proponi il tuo prezzoProponi il tuo prezzo

Classe Energetica

A4
A4
A4
A4
A4
A4
A4
A4
A4
EP invernale del fabbricato:
EP estiva del fabbricato:
Anno di costruzione:
2027
Riscaldamento:
Autonomo
Tipo impianto:
A pavimento
Tipo alimentazione:
Pannelli

Ti interessa visionare l'immobile?

Fissa un appuntamento  Fissa un appuntamento

Richiedi informazioni

Clicca su Leggi per aprire l'informativa
* Questi campi sono obbligatori

Calcola il tuo mutuo

Semplice e senza impegno
Anticipo

( % )
Mutuo

( % )

pochi semplici passi

inserisci i tuoi dati
Questionario completato
Grazie per aver richiesto un appuntamento senza impegno con un nostro Consulente del Credito e Assicurativo.

Hai inserito correttamente tutti i dati necessari e a breve riceverai una e-mail con un link da convalidare per inviare i tuoi dati.
Affiliato
Studio Montebelluna Srl
Via Ospedale, 15 31044 Montebelluna (TV)

Il nostro staff


  • Edoardo Maria Cunzo
    Affiliato

  • Katia Bau
    Coordinatrice

  • Elisa Bottegal
    Coordinatrice

  • Marina Cunzo
    Collaboratrice

  • Veronica Cavallin
    Collaboratrice

  • Sara Fedato
    Collaboratrice

  • Linda Lampariello
    Collaboratrice
Via Ospedale, 15 31044 Montebelluna (TV)
Zona: Montebelluna Duomo
Mostra su mappa
Orari: lunedì-venerdì 9.00/12.30 - 15.00/19.30 - sabato 9.00/12.30 e pomeriggio su appuntamento
Affiliato
Studio Montebelluna Srl
Via Ospedale, 15 31044 Montebelluna (TV)

2025 Tecnocasa Franchising S.p.A. - P. IVA 08365160152 - Via Monte Bianco 60/A 20089 Rozzano (MI). Ogni agenzia ha un proprio titolare ed è autonoma. Privacy policy | Policy utilizzo | Cookie policy