Casa semindipendente in vendita

Montebelluna, Via Ospedale - Contea
€ 300.000
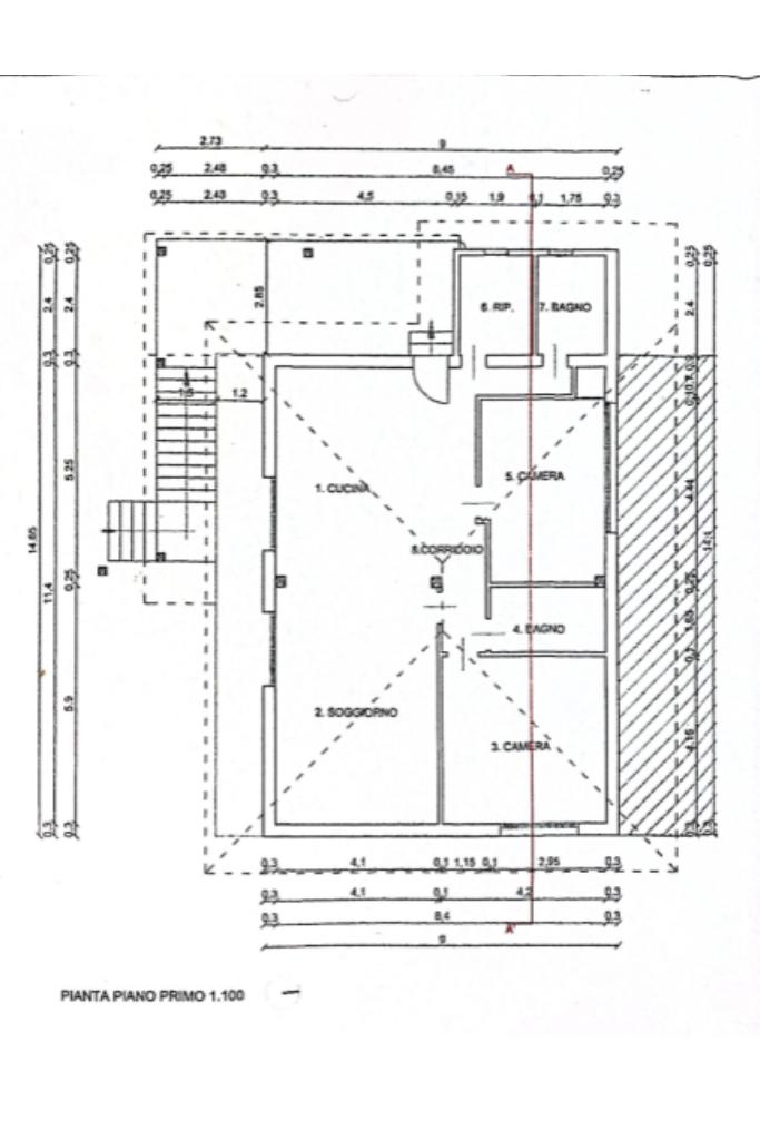
3 locali 3 locali
120 Mq 120 Mq
2 bagni 2 bagni

Casa semindipendente in vendita

Montebelluna, Via Ospedale - Contea

Descrizione annuncio

///NOSTRA ESCLUSIVA///

CONTEA. Nel cuore della tranquilla località di Contea, nel comune di Montebelluna, è disponibile per la vendita una casa semindipendente.

L'abitazione si presenta accogliente e ben distribuita, con ambienti funzionali e luminosi.

La zona giorno è composta da tre locali principali: due ampie camere da letto e un terzo spazio attualmente adibito a soggiorno.

I due bagni presenti sono stati progettati per offrire comfort e praticità nella vita quotidiana.

Un ampio terrazzo rappresenta un valore aggiunto, offrendo uno spazio esterno riservato, ideale per momenti di relax o convivialità.

A completare la proprietà vi sono tre posti auto esterni, che garantiscono comodità nel parcheggio e uno scoperto privato.

L’immobile, originariamente costruito nel 1975, sarà oggetto di una completa ristrutturazione, il cui termine è previsto per fine 2025 o inizio 2026. I lavori sono già stati interamente saldati dagli attuali proprietari.

Un ulteriore punto di forza è rappresentato dal piano terra della casa, attualmente adibito a uffici, ma con potenziale per essere trasformato in due appartamenti indipendenti oppure in garage, offrendo così ulteriori soluzioni abitative o di investimento.

Questa soluzione è ideale per chi desidera vivere in un contesto tranquillo ma ben servito, con spazi ampi, versatili e un grande potenziale di personalizzazione.

Per ulteriori informazioni contattateci in Agenzia e seguiteci anche su Instagram, e cliccando mi piace sulla pagina Facebook Gruppo Tecnocasa Montebelluna Duomo e Centro.

Scaricate gratuitamente l'app Tecnocasa sul vostro smartphone e sarete sempre aggiornati sulle nostre proposte di vendita.

Mostra tutto

Nelle vicinanze

Trasporto pubblico Trasporto pubblico
Montebelluna
Montebelluna
1,5 Km
Trasporto pubblico
140 m
Scuole Scuole
Asilo nido comunale
170 m
IPSIA Scarpa
350 m
Scuola Primaria Guglielmo Marconi
370 m
Scuola Secondaria di Secondo Grado Statale Papa Giovanni XXIII
530 m
Scuola dell'infanzia Bortot
740 m
Farmacia Farmacia
Naturalmente erbe erboristeria
100 m
Farmacia Bassi
390 m
Farmacia Centrale
760 m
Farmacia Contea alla Salute
850 m
Farmacia Centrale Dott. Andrea Marin
900 m
Ospedali Ospedali
Ospedale Civile di Montebelluna San Valentino
280 m
Ospedale Vecchio di Montebelluna
370 m
Supermercati Supermercati
Da Eddy, piaceri italiani - Crai
190 m
Natura Si
200 m
Cadoro
630 m
Supermercati Crai
1,1 Km
Dadi Market
1,1 Km
Negozi Negozi
Panificio pasticceria Quaggiotto
40 m
Ottavo peccato
140 m
Il riccio. Spaccio pannolini e prodotti per l'infanzia
360 m
Fiscalzo Abbigliamento e confezioni
390 m
Pane, Caffè, Pasticceria LD
480 m
Bar Bar
Bar
130 m
Mokita
180 m
La fiasca dei nonni
280 m
Hirsh
580 m
Caffè Bramezza
710 m
Ristoranti Ristoranti
PiBi. Il piacere della pizza e della birra artigianale
100 m
Elia Fast Food Kebab
170 m
Pizzeria la Terrazza
220 m
The Rock. Birreria steckhouse
470 m
Corte maggiore
570 m
Mostra tutto

Caratteristiche

Rif.:
61106714
Piano:
1 di 2 (Piano alto)
Box:
1
Posti auto:
3
Terrazzi:
1
Camere da letto:
2
Mostra tutto
Prezzo Prezzo
€ 300.000
Rata mutuo Rata mutuo
€ 1.424 / mese
Spese annue Spese annue
€ 0
Proponi il tuo prezzoProponi il tuo prezzo

Classe Energetica

G
G
G
G
G
G
G
G
G
Anno di costruzione:
1975
Riscaldamento:
Autonomo
Tipo impianto:
A stufa
Tipo alimentazione:
Pannelli

Ti interessa visionare l'immobile?

Fissa un appuntamento  Fissa un appuntamento

Richiedi informazioni

Clicca su Leggi per aprire l'informativa
* Questi campi sono obbligatori

Calcola il tuo mutuo

Semplice e senza impegno
Anticipo

( % )
Mutuo

( % )

pochi semplici passi

inserisci i tuoi dati
Questionario completato
Grazie per aver richiesto un appuntamento senza impegno con un nostro Consulente del Credito e Assicurativo.

Hai inserito correttamente tutti i dati necessari e a breve riceverai una e-mail con un link da convalidare per inviare i tuoi dati.
Affiliato
Studio Montebelluna Srl
Via Ospedale, 15 31044 Montebelluna (TV)

Il nostro staff


  • Edoardo Maria Cunzo
    Affiliato

  • Katia Bau
    Coordinatrice

  • Fahd Ibrahimi
    Collaboratore

  • Elisa Bottegal
    Coordinatrice

  • Marina Cunzo
    Affiliata

  • Linda Lampariello
    Collaboratrice

  • Matteo Tonini
    Collaboratore

  • Giulia Zanella
    Collaboratrice
Via Ospedale, 15 31044 Montebelluna (TV)
Zona: Montebelluna Duomo
Mostra su mappa
Orari: lunedì-venerdì 09:00/12:30 - 15:00/19:30 - sabato 09:00/12:30 e su appuntamento
Affiliato
Studio Montebelluna Srl
Via Ospedale, 15 31044 Montebelluna (TV)

2026 Tecnocasa Franchising S.p.A. - P. IVA 08365160152 - Via Monte Bianco 60/A 20089 Rozzano (MI). Ogni agenzia ha un proprio titolare ed è autonoma. Privacy policy | Policy utilizzo | Cookie policy