Porzione di bifamiliare in vendita

Monfumo, Via Ospedale
€ 600.000
Prezzo aggiornato
4 locali 4 locali
241 Mq 241 Mq
4 bagni 4 bagni

Porzione di bifamiliare in vendita

Monfumo, Via Ospedale

Descrizione annuncio

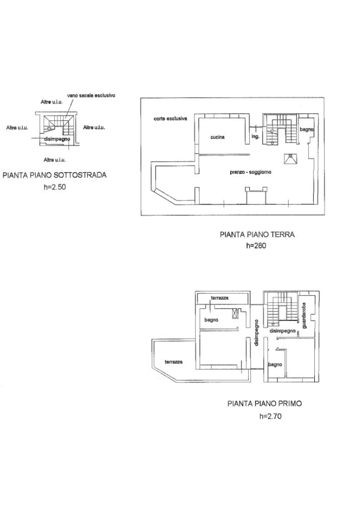
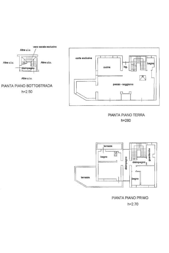
MONFUMO. Nel cuore delle colline del Prosecco, patrimonio UNESCO, proponiamo in vendita una raffinata villa bifamiliare di 250 mq, immersa in un parco privato di 5500 mq, dove tranquillità, privacy e qualità costruttiva si fondono in un'unica, straordinaria residenza. Edificata nel 2008, questa proprietà è stata progettata per offrire il massimo comfort abitativo in ogni dettaglio, con finiture di alto pregio e soluzioni impiantistiche all'avanguardia.

L'ingresso al piano terra introduce in un ambiente elegante e accogliente, con un ampio spazio che conduce alla cucina abitabile, la quale si apre su un portico coperto ideale per pranzi e cene all'aperto.

Sempre al piano terra si trovano un bagno di servizio, una sala da pranzo e un salotto impreziosito da un importante camino in marmo, oltre a uno studio riservato, valorizzato da una boiserie in legno realizzata su misura da un artigiano falegname.

La scala interna, in pregiato marmo bianco d'Istria, conduce al primo piano, dove si sviluppa la zona notte: la camera matrimoniale è servita da un terrazzo di 18 mq e da un bagno privato con doccia e ulteriore terrazzo, mentre la camera singola dispone anch'essa di un bagno esclusivo con vasca. A completare il piano, un ampio guardaroba su misura.

Il piano interrato offre un comodo garage doppio con accesso diretto all'interno dell'abitazione, una lavanderia, una cantina, un ulteriore bagno con doccia, e un'area benessere esclusiva, condivisa con l'altra porzione di villa, che comprende una taverna di 55 mq perfetta per momenti conviviali un locale piscina con bagno turco, spogliatoi e servizi.

La proprietà è dotata di impianti e dotazioni di altissimo livello: riscaldamento a pavimento su tutta la superficie, pavimento in veneziana nella zona giorno, impianto fotovoltaico e pannelli solari per la massima efficienza energetica, impianto di irrigazione motorizzato, fibra ottica, tapparelle elettriche, vetri antiproiettile su tutte le finestre, oltre a un sistema automatizzato di nebulizzazione in giardino che ogni tre giorni rilascia un insetticida innocuo per l'uomo, assicurando comfort e vivibilità anche negli spazi esterni durante i mesi più caldi.

Una soluzione abitativa di grande prestigio, ideale per chi cerca un ambiente esclusivo, immerso nel verde ma con tutte le comodità moderne, in una delle aree più affascinanti e richieste del Veneto.

Per ulteriori informazioni contattateci in Agenzia e seguiteci anche su Instagram, e cliccando mi piace sulla pagina Facebook Gruppo Tecnocasa Montebelluna Duomo e Centro.

Scaricate gratuitamente l'app Tecnocasa sul vostro smartphone e sarete sempre aggiornati sulle nostre proposte di vendita.

Mostra tutto

Nelle vicinanze

Scuole Scuole
Scuole
3,0 Km
Farmacia Farmacia
Farmacia di Castelcucco
2,9 Km
Farmacia Bonotto Massimo
3,0 Km
Supermercati Supermercati
Despar
2,8 Km
Formaggi Dalla Libera
2,9 Km
Bar Bar
Cafè Latino
920 m
Rock Cafè
2,9 Km
Bar Tappo
3,0 Km
Bar Municipio
3,0 Km
Bar Cornaro
3,0 Km
Ristoranti Ristoranti
Osteria alla Chiesa
270 m
Locanda da Gerry
300 m
Ristoranti
960 m
Osteria Strachin
1,1 Km
Osteria alla Baracca
1,4 Km
Mostra tutto

Caratteristiche

Rif.:
61126566
Piano:
3 di 3 (Piano su più livelli)
Box:
1
Posti auto:
3
Terrazzi:
2
Camere da letto:
2
Mostra tutto
Prezzo Prezzo
€ 600.000
Rata mutuo Rata mutuo
€ 2.832 / mese
Spese annue Spese annue
€ 0
Proponi il tuo prezzoProponi il tuo prezzo
Immobile valutato con T·Valuta

Classe Energetica

C
C
C
C
C
C
C
C
C
Anno di costruzione:
2008
Riscaldamento:
Autonomo
Tipo impianto:
A pavimento
Tipo alimentazione:
Pannelli

Prezzo ridotto di €1 (15%%)

Ti interessa visionare l'immobile?

Fissa un appuntamento  Fissa un appuntamento

Richiedi informazioni

Clicca su Leggi per aprire l'informativa
* Questi campi sono obbligatori

Calcola il tuo mutuo

Semplice e senza impegno
Anticipo

( % )
Mutuo

( % )

pochi semplici passi

inserisci i tuoi dati
Questionario completato
Grazie per aver richiesto un appuntamento senza impegno con un nostro Consulente del Credito e Assicurativo.

Hai inserito correttamente tutti i dati necessari e a breve riceverai una e-mail con un link da convalidare per inviare i tuoi dati.
Affiliato
Studio Montebelluna Srl
Via Ospedale, 15 31044 Montebelluna (TV)

Il nostro staff


  • Edoardo Maria Cunzo
    Affiliato

  • Katia Bau
    Coordinatrice

  • Elisa Bottegal
    Coordinatrice

  • Marina Cunzo
    Collaboratrice

  • Veronica Cavallin
    Collaboratrice

  • Sara Fedato
    Collaboratrice

  • Linda Lampariello
    Collaboratrice
Via Ospedale, 15 31044 Montebelluna (TV)
Zona: Montebelluna Duomo
Mostra su mappa
Orari: lunedì-venerdì 9.00/12.30 - 15.00/19.30 - sabato 9.00/12.30 e pomeriggio su appuntamento
Affiliato
Studio Montebelluna Srl
Via Ospedale, 15 31044 Montebelluna (TV)

2025 Tecnocasa Franchising S.p.A. - P. IVA 08365160152 - Via Monte Bianco 60/A 20089 Rozzano (MI). Ogni agenzia ha un proprio titolare ed è autonoma. Privacy policy | Policy utilizzo | Cookie policy