Quadrilocale in vendita

Monfumo, Via Ospedale - Era Grande
€ 95.000
Prezzo aggiornato
4 locali 4 locali
161 Mq 161 Mq
1 bagno 1 bagno

Quadrilocale in vendita

Monfumo, Via Ospedale - Era Grande

Descrizione annuncio

///NOSTRA ESCLUSIVA DI VENDITA///

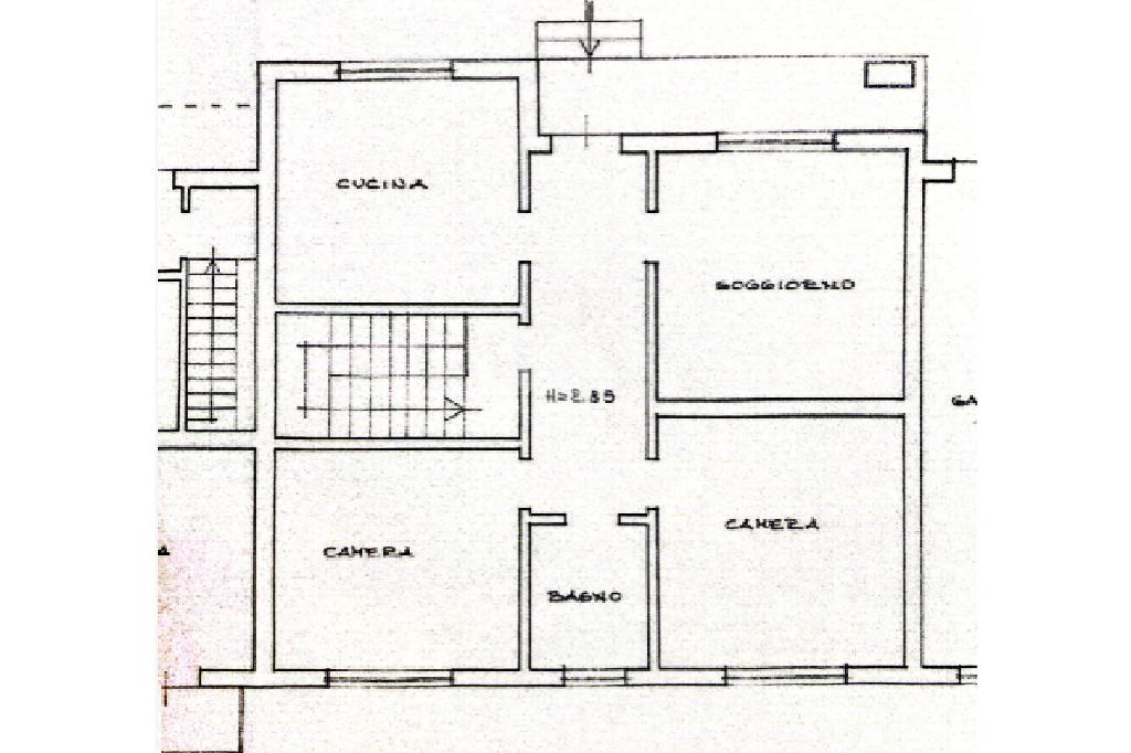
MONFUMO. A Monfumo, in una splendida zona panoramica circondata dal verde e dalla tranquillità delle colline, proponiamo in vendita un appartamento al piano terra, edificato nel 1966 e oggetto di ristrutturazioni mirate nel corso degli anni, che ne hanno migliorato comfort ed efficienza.

L'abitazione si sviluppa su due livelli e offre spazi ben distribuiti. Al piano terra si trovano una cucina separata dal soggiorno, un bagno con vasca rinnovato nel 1982 e due ampie camere matrimoniali, luminose e accoglienti, ideali per chi desidera ambienti comodi e funzionali.

Il piano semi-interrato completa la proprietà con una taverna calda e conviviale, una cantina, un garage e un locale caldaia dotato di doccia, perfetto anche come lavanderia o spazio multiuso.

Gli impianti sono stati aggiornati nel tempo: quello di riscaldamento nel 1974, l'impianto elettrico nel 2000 con certificazione e salvavita, mentre la caldaia è stata sostituita nel 2014. La ristrutturazione ha interessato anche le finiture, con serramenti, porte interne e persiane completamente nuovi, che valorizzano l'aspetto e la vivibilità dell'immobile.

All'esterno, un giardino privato completa la proprietà, offrendo uno spazio verde da vivere ogni giorno, ideale per momenti di relax, giochi all'aperto o cene in compagnia.

Una soluzione perfetta per chi cerca indipendenza, tranquillità e una vista panoramica in uno dei contesti più suggestivi della zona.

Per ulteriori informazioni contattateci in Agenzia e seguiteci anche su Instagram, e cliccando mi piace sulla pagina Facebook Gruppo Tecnocasa Montebelluna Duomo e Centro.

Scaricate gratuitamente l'app Tecnocasa sul vostro smartphone e sarete sempre aggiornati sulle nostre proposte di vendita.

Mostra tutto

Nelle vicinanze

Scuole Scuole
Scuole
3,0 Km
Farmacia Farmacia
Farmacia di Castelcucco
2,9 Km
Farmacia Bonotto Massimo
3,0 Km
Supermercati Supermercati
Despar
2,8 Km
Formaggi Dalla Libera
2,9 Km
Bar Bar
Cafè Latino
920 m
Rock Cafè
2,9 Km
Bar Tappo
3,0 Km
Bar Municipio
3,0 Km
Bar Cornaro
3,0 Km
Ristoranti Ristoranti
Osteria alla Chiesa
270 m
Locanda da Gerry
300 m
Ristoranti
960 m
Osteria Strachin
1,1 Km
Osteria alla Baracca
1,4 Km
Mostra tutto

Caratteristiche

Rif.:
61127397
Piano:
Terra di 2
Totale piani:
2
Box:
1
Posti auto:
5
Camere da letto:
2
Mostra tutto
Prezzo Prezzo
€ 95.000
Rata mutuo Rata mutuo
€ 448 / mese
Spese annue Spese annue
€ 0
Proponi il tuo prezzoProponi il tuo prezzo
Immobile valutato con T·Valuta

Classe Energetica

D
D
D
D
D
D
D
D
D
EP invernale del fabbricato:
EP estiva del fabbricato:
Anno di costruzione:
1966
Riscaldamento:
Autonomo
Tipo impianto:
A radiatori
Tipo alimentazione:
GPL

Prezzo ridotto di €1 (10%%)

Ti interessa visionare l'immobile?

Fissa un appuntamento  Fissa un appuntamento

Richiedi informazioni

Clicca su Leggi per aprire l'informativa
* Questi campi sono obbligatori

Calcola il tuo mutuo

Semplice e senza impegno
Anticipo

( % )
Mutuo

( % )

pochi semplici passi

inserisci i tuoi dati
Questionario completato
Grazie per aver richiesto un appuntamento senza impegno con un nostro Consulente del Credito e Assicurativo.

Hai inserito correttamente tutti i dati necessari e a breve riceverai una e-mail con un link da convalidare per inviare i tuoi dati.
Affiliato
Studio Montebelluna Srl
Via Ospedale, 15 31044 Montebelluna (TV)

Il nostro staff


  • Edoardo Maria Cunzo
    Affiliato

  • Katia Bau
    Coordinatrice

  • Elisa Bottegal
    Coordinatrice

  • Marina Cunzo
    Collaboratrice

  • Veronica Cavallin
    Collaboratrice

  • Sara Fedato
    Collaboratrice

  • Linda Lampariello
    Collaboratrice
Via Ospedale, 15 31044 Montebelluna (TV)
Zona: Montebelluna Duomo
Mostra su mappa
Orari: lunedì-venerdì 9.00/12.30 - 15.00/19.30 - sabato 9.00/12.30 e pomeriggio su appuntamento
Affiliato
Studio Montebelluna Srl
Via Ospedale, 15 31044 Montebelluna (TV)

2025 Tecnocasa Franchising S.p.A. - P. IVA 08365160152 - Via Monte Bianco 60/A 20089 Rozzano (MI). Ogni agenzia ha un proprio titolare ed è autonoma. Privacy policy | Policy utilizzo | Cookie policy