Villa singola in vendita

Cavaso Del Tomba, Via Ospedale
€ 1.000.000
4 locali 4 locali
402 Mq 402 Mq
1 bagno 1 bagno

Villa singola in vendita

Cavaso Del Tomba, Via Ospedale

Descrizione annuncio

///NOSTRA ESCLUSIVA DI VENDITA///

CAVASO DEL TOMBA. Nel cuore delle colline trevigiane, nel suggestivo comune di Cavaso del Tomba, proponiamo in vendita una prestigiosa villa storica risalente al periodo della Serenissima Repubblica di Venezia, sapientemente ristrutturata nel 1982, inclusi gli impianti elettrico e idraulico. Questa residenza unica nel suo genere, immersa in un contesto naturale di rara bellezza, rappresenta un perfetto connubio tra storia, eleganza e autenticità veneta.

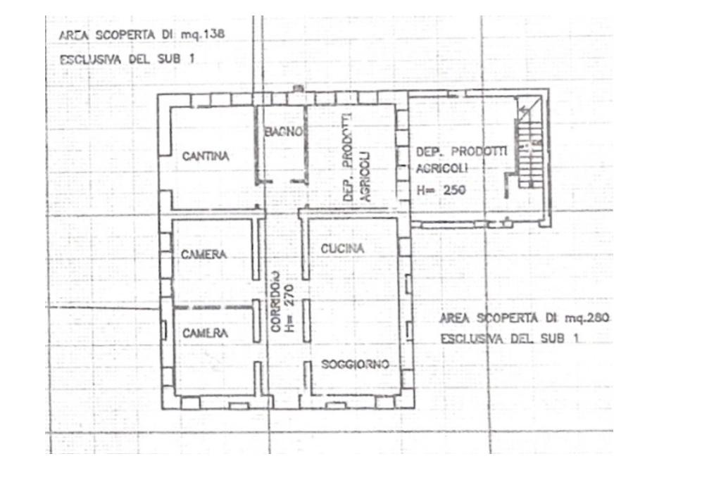
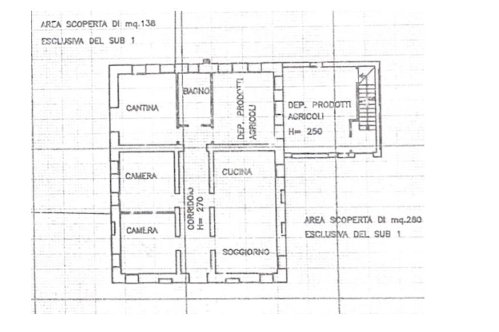
Disposta su tre livelli, la villa accoglie al piano terra una spaziosa zona giorno con cucina, salotto, due camere, un bagno, una cantina e un garage singolo con basculante elettrico, oltre a un comodo ripostiglio. Il primo piano, al momento al semi-grezzo, offre quattro ampie stanze che, con un intervento di ristrutturazione, possono diventare una splendida estensione dell’abitazione o un secondo appartamento indipendente, ideale per ospiti o per creare una zona dedicata alla ricettività di charme. All’ultimo piano si trova la soffitta, che completa gli spazi interni della dimora.

A rendere questa proprietà davvero esclusiva è il suo straordinario terreno di oltre 54.000 mq, che comprende un ettaro di Prosecco DOCG del 2018 con impianto di irrigazione e ulteriori 3.000 mq di nuovo vigneto DOCG in fase di impianto, realizzato nel pieno rispetto delle specifiche tecniche e planimetriche del progetto viticolo. La proprietà include anche una zona boschiva dove si ergono maestosi castagni secolari, offrendo uno scenario naturale di grande fascino e tranquillità.

A completare la proposta, sono inclusi nella vendita attrezzi agricoli del valore complessivo di circa 70.000 euro, che rendono la gestione del vigneto immediatamente operativa e rappresentano un ulteriore vantaggio per chi desidera proseguire l’attività vitivinicola con continuità e professionalità.

Questa villa storica è la scelta ideale per chi desidera vivere circondato dalla natura, nella quiete delle colline del Prosecco, senza rinunciare al prestigio di una dimora d’epoca dal valore unico. Perfetta come residenza privata di rappresentanza o come tenuta vitivinicola di charme con potenziale anche turistico-ricettivo.

Per ulteriori informazioni contattateci in Agenzia e seguiteci anche su Instagram, e cliccando mi piace sulla pagina Facebook Gruppo Tecnocasa Montebelluna Duomo e Centro.

Scaricate gratuitamente l'app Tecnocasa sul vostro smartphone e sarete sempre aggiornati sulle nostre proposte di vendita.

Mostra tutto

Nelle vicinanze

Trasporto pubblico Trasporto pubblico
Trasporto pubblico
2,4 Km
Scuole Scuole
Scuole
1,3 Km
Cavanis
1,8 Km
Scuole Elementari
2,3 Km
Farmacia Farmacia
Farmacia
670 m
Supermercati Supermercati
Crai
330 m
Bar Bar
Dersut
350 m
Alla Filanda
630 m
Canova
1,7 Km
Bar dello sport
1,9 Km
Bar
2,0 Km
Ristoranti Ristoranti
Pizzeria Olimpic
940 m
Agriturismo Bepi Cunial
1,1 Km
Da Rody - Ristorante Pizzeria
1,3 Km
Ristorante Pizzeria Olivi
2,3 Km
Ristorante la 28° buca
2,4 Km
Mostra tutto

Caratteristiche

Rif.:
61138997
Piano:
1 di 3 (Piano terra con giardino)
Box:
1
Posti auto:
1
Camere da letto:
2
Arredamento:
Parziale
Mostra tutto
Prezzo Prezzo
€ 1.000.000
Rata mutuo Rata mutuo
€ 4.746 / mese
Spese annue Spese annue
€ 0
Proponi il tuo prezzoProponi il tuo prezzo

Classe Energetica

F
F
F
F
F
F
F
F
F
Anno di costruzione:
1800
Riscaldamento:
Autonomo
Tipo impianto:
A stufa
Tipo alimentazione:
Altro

Ti interessa visionare l'immobile?

Fissa un appuntamento  Fissa un appuntamento

Richiedi informazioni

Clicca su Leggi per aprire l'informativa
* Questi campi sono obbligatori

Calcola il tuo mutuo

Semplice e senza impegno
Anticipo

( % )
Mutuo

( % )

pochi semplici passi

inserisci i tuoi dati
Questionario completato
Grazie per aver richiesto un appuntamento senza impegno con un nostro Consulente del Credito e Assicurativo.

Hai inserito correttamente tutti i dati necessari e a breve riceverai una e-mail con un link da convalidare per inviare i tuoi dati.
Affiliato
Studio Montebelluna Srl
Via Ospedale, 15 31044 Montebelluna (TV)

Il nostro staff


  • Edoardo Maria Cunzo
    Affiliato

  • Katia Bau
    Coordinatrice

  • Fahd Ibrahimi
    Collaboratore

  • Elisa Bottegal
    Coordinatrice

  • Marina Cunzo
    Affiliata

  • Linda Lampariello
    Collaboratrice

  • Matteo Tonini
    Collaboratore

  • Giulia Zanella
    Collaboratrice
Via Ospedale, 15 31044 Montebelluna (TV)
Zona: Montebelluna Duomo
Mostra su mappa
Orari: lunedì-venerdì 09:00/12:30 - 15:00/19:30 - sabato 09:00/12:30 e su appuntamento
Affiliato
Studio Montebelluna Srl
Via Ospedale, 15 31044 Montebelluna (TV)

2026 Tecnocasa Franchising S.p.A. - P. IVA 08365160152 - Via Monte Bianco 60/A 20089 Rozzano (MI). Ogni agenzia ha un proprio titolare ed è autonoma. Privacy policy | Policy utilizzo | Cookie policy